PREDAJ

3izb byt širšie centrum mesta Košice, Bencúrova ul.

3-izbový byt s dušou v tehlovom dome, 77,66 m² – Bencúrová ulica, Košice (širšie centrum)*
Bencúrová
221 000 €
Užitková plocha:
72,8 m2
Stav nehnuteľnosti:
Pôvodný stav
Podlažie:
2
Výťah:
áno
Pivnica:
áno
Loggia:
nie

 3-izbový byt s dušou v tehlovom dome, 77,66 m² – Bencúrová ulica, Košice (širšie centrum) v blízkosti NOVOSTAVBY KMEŤOVA.

Ponúkame na predaj priestranný 3-izbový byt s výnimočnou atmosférou, nachádzajúci sa v tehlovom bytovom dome na Bencúrovej ulici v Košiciach, v širšom centre mesta. Lokalita spája výbornú dostupnosť do centra s kompletnou občianskou vybavenosťou a zároveň si zachováva pokojnejší charakter bývania.

Byt má charakter, veľkorysé priestory a „dušu“, ktorá často moderným  novostavbám často chýba.

Bytový dom bol postavený v roku 1949, má hrubé tehlové múry (cca 50–60 cm), je zateplený a má výťah. Veľkou výhodou je uzatvorený dvor s možnosťou parkovania, do ktorého je vstup aj autom. Parkovanie je možné aj na ulici formou rezidentskej karty.

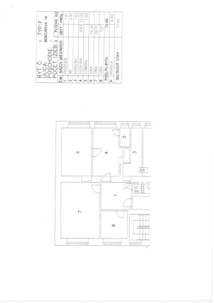
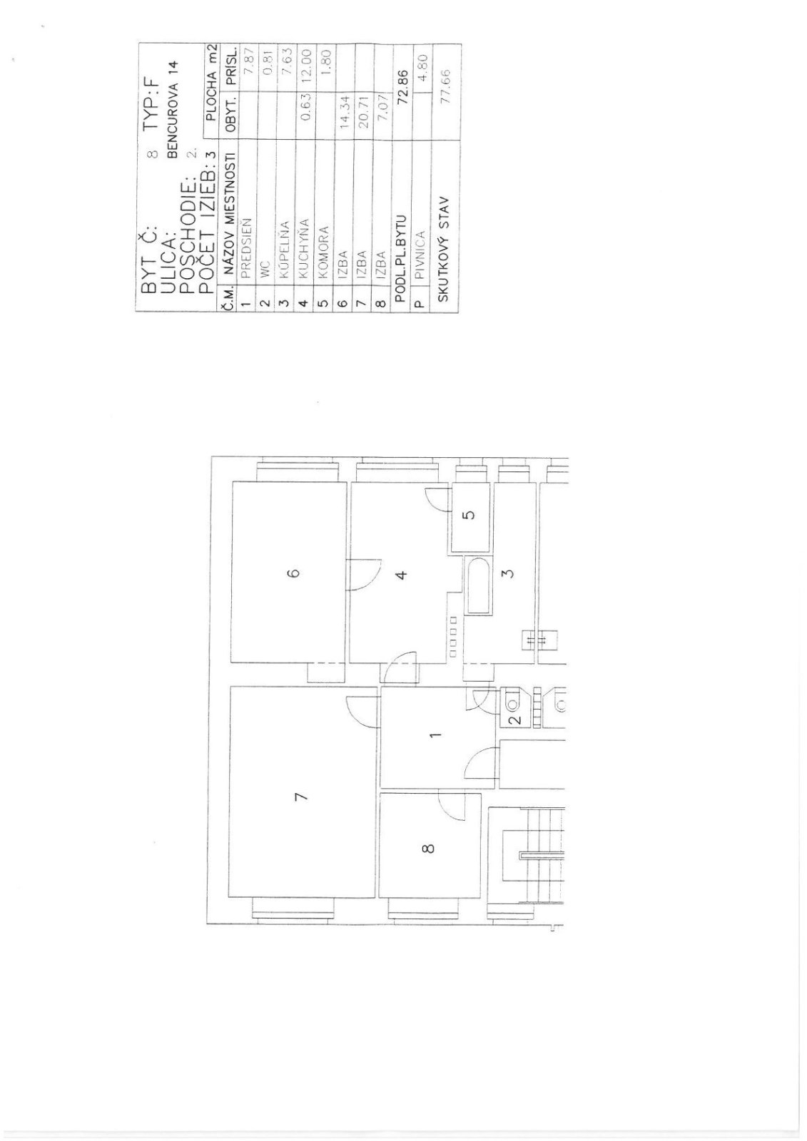
 Výmera a dispozícia

  • Podlahová plocha bytu: 72,86 m²
  • Pivnica: 4,80 m²
  • Celková výmera: 77,66 m²
  • Poschodie: 2.
  • Počet izieb: 3

 

Rozpis miestností:

  • Predsieň: 7,87 m²
  • WC: 0,81 m²
  • Kúpeľňa s oknom (liatinová vaňa): 7,63 m²
  • Kuchyňa (samostatná): 12,00 m²
  • Komora / špajza: 1,80 m²
  • Izba: 14,34 m²
  • Izba: 20,71 m²
  • Izba: 7,07 m²

Obývacia izba je priechodná do spálne, kuchyňa je samostatná so vstupom do špajze. Byt nemá balkón, no veľká izba ponúka možnosť vytvorenia vnútornej loggie.

 

 Stav bytu

  • veľmi pekný, udržiavaný pôvodný stav
  • drevené parkety v celom byte
  • vysoké stropy 3,1 m
  • drevené interiérové dvere so zárubňami
  • plastové okná (cca 20 rokov)
  • vlastný plynový kondenzačný kotol Buderus – vymenený pred 2 rokmi
  • 2 vodomery v byte
  • samostatná toaleta

Byt má jedinečnú atmosféru a pôsobí veľmi príjemne – ideálny pre klienta, ktorý hľadá charakterové bývanie v širšom centre mesta.

Fotografie kombinujú vizualizáciu možnej rekonštrukcie a reálny stav nehnuteľnosti.

 Prevádzkové náklady (1 osoba)

  • správa (Spoločenstvo bytov): 65 €
  • plyn + elektrina spolu: 73 €
  • nízke mesačné náklady

 

 Lokalita – širšie centrum Košíc

Byt sa nachádza v širšom centre mesta, s výbornou dostupnosťou do historického centra a kompletnou občianskou vybavenosťou v pešej dostupnosti:

  • JUMBO – 5 minút
  • Železničná nemocnica – 5 minút
  • ZŠ Masarykova – 5 minút
  • URBAN – 10 minút
  • Železničná stanica – 10 minút

 

V bezprostrednom okolí sa nachádzajú novostavby bytových domov, čo potvrdzuje atraktivitu a rozvojový potenciál lokality.
Byt má výhľad do dvora aj na ulicu, nie priamo na železničnú trať.

 

 

Vážení klienti, rada Vás budem sprevádzať celým procesom predaja od obhliadky až po jej odovzdanie vrátane prepisov a kompletného poradenstva s predajom a s poskytovaním úverov na bývanie pre všetky banky a stavebné sporiteľne /realitná kancelária je registrovaná ako sprostredkovateľ v NBS a je certifikovaným členom Realitnej únie Slovenska/.

Pre viac informácií a záujem o obhliadku ma kontaktuje na tel. čísle +421 905 473 512 alebo mailom: visitreal@visitreal.sk. V cene tejto nehnuteľnosti sú zahrnuté poplatky súvisiace s predajom /vypracovanie kúpnych zmlúv autorizovaným advokátom, poplatky za overenie podpisov, kolky za štandardné návrhy na vklad do katastra, výpis listu vlastníctva na právne účely.
Silvia Pethoová
Realitný maklér - konateľ