PREDAJ

Ponúkame pozemok v lokalite Košice - okolie, Vyšná Hutka

Na predaj pozemok so stavebným povolením Košice - okolie, Vyšná Hutka
Vyšná Hutka
114 900 €
Plocha pozemku:
725 m2
Inžinierske siete:
áno
Predaj pozemku so stavebným povolením – Vyšná Hutka-okamžitá výstavba
Ponúkame na predaj stavebný pozemok na konci obce Vyšná Hutka, situovaný v tichej lokalite s
absolútnym súkromím a pekným výhľadom, dostupnosť do Košíc autom 15 min. , výborné
napojenie na D1, nová R2 .
 
Pozemok je mierne svahovitý, má vydané platné stavebné povolenie, čo umožňuje okamžitú
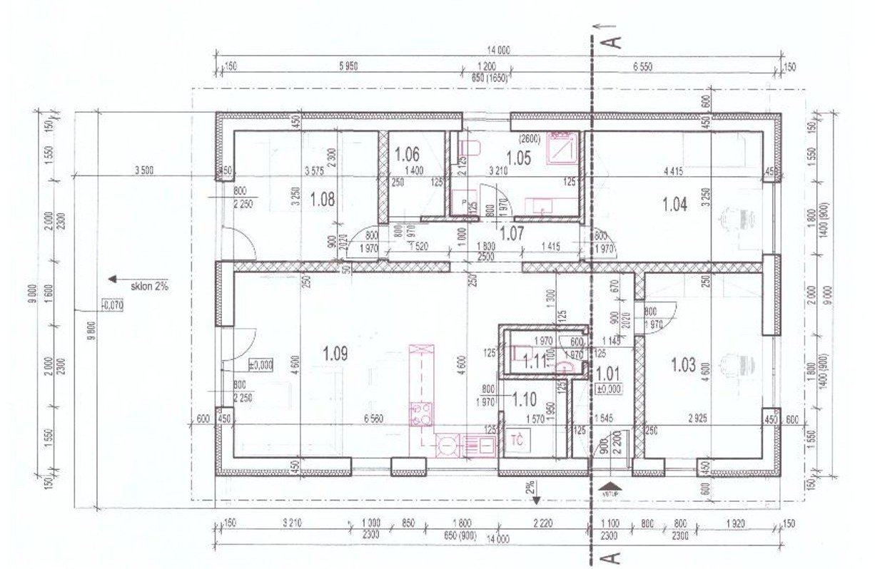
výstavbu rodinného domu (bungalovu), bez podzemného podlažia. Pôdorysne má tvar obdĺžnika
cca 9x14m, s valbovou strechou.2
 
Kúpu je možné realizovať hypotekárnym úverom.
 
Základné informácie:
- obec: Vyšná Hutka
- typ: stavebný pozemok
- poloha: koniec obce
- terén: mierne svahovitý
- výmera pozemku: 725 m2
- rozmery pozemku: šírka 14,5m, dĺžka 50m
- stavebné povolenie: áno – platné
- možnosť okamžitej výstavby
 
Inžinierske siete a prístup:
- funkčná elektrická prípojka pri pozemku
- voda: studňa (v okolí nové rodinné domy riešené studňou)
- odpad: žumpa
-vykurovanie: podlahové, napojené na tepelné čerpadlo
- doplnkové vykurovanie a vetranie: centrálna rekuperácia
- príprava teplej úžitkovej vody: zásobník teplej vody o objeme 175l, zabudovaným v TČ
- internet dostupný
- prístupová cesta: celoročne udržiavaná (aj v zime)
- zabezpečený vývoz odpadu
- výmera pozemku 725m²
- zastavaná plocha 126m2
- prístupová cesta obecná
- vzdialenosť do Košíc 15 min autom
- pozemok neoplotený
- projekt domu k dispozícii
 
Základné info k RD – právoplatné stavebné povolenie:
Zastavaná plocha RD 126 m2
Obytná plocha RD 75,47 m2
Úžitková plocha RD 99,85
Zastavaná plocha TERASA 31,5m2
Zastavaná plocha CHODNÍKY 26,5 m2
Zastavaná plocha PARKING 57 m2
Dispozícia RD:
Zádverie 4,80 m2
Izba 13,46 m2
Izba 14,35 m2
 
Obývačka spojená s kuchyňou 35,52 m2 s výstupom na terasu
Kúpeľňa + WC 6,82 m2
Šatník 2,98 m2
Chodba 4,74 m2
Spálňa 12,14 m2 s výstupom na terasu
Technická miestnosť + komora 3,06 m2
WC 2,00 m2
Terasa 26m2
 
Navrhované materiály:
Obvodové nosné murivo hr. 300mm z tvárnic porfix P2-440
Zateplenie: tepelná izolácia isover EPS 70F-15 hr. 150mm
Strecha: drevená valbová, sklon strešných rovín 25 stupňov, krytina plechová, krov nezateplený,
nie je uvažované s umiestnením FV ani solárnych panelov
 
Lokalita:
Vyšná Hutka je vyhľadávaná obec v blízkosti Košíc, obľúbená pre pokojné bývanie v prírode,
narastajúcu výstavbu nových rodinných domov, dobrú dostupnosť do mesta, priame napojenie na
D1 /Iba 10 km od D1 /Budimír/, nová R2 v smere na Prešov a v smere na Miskolc /dobrá dostupnosť
nového závodu VOLVO/ plynulý obchvat.
Pozemok sa nachádza na konci obce, čo zaručuje minimum ruchu, maximálne súkromie a ničím
nerušené výhľady.
 List vlastníctva a projektová dokumentácia sú v cene pozemku a sú k dispozícii na vyžiadanie.
 
Kúpu je možné realizovať hypotekárnym úverom.
Vážení klienti, rada Vás budem sprevádzať celým procesom predaja od obhliadky až po jej odovzdanie vrátane prepisov a kompletného poradenstva s predajom a s poskytovaním úverov na bývanie pre všetky banky a stavebné sporiteľne /realitná kancelária je registrovaná ako sprostredkovateľ v NBS a je certifikovaným členom Realitnej únie Slovenska/.

Pre viac informácií a záujem o obhliadku ma kontaktuje na tel. čísle +421 905 473 512 alebo mailom: visitreal@visitreal.sk. V cene tejto nehnuteľnosti sú zahrnuté poplatky súvisiace s predajom /vypracovanie kúpnych zmlúv autorizovaným advokátom, poplatky za overenie podpisov, kolky za štandardné návrhy na vklad do katastra, výpis listu vlastníctva na právne účely.
Silvia Pethoová
Realitný maklér - konateľ